2004 chevy silverado i need the diagram for the power window wiring. Friday june 21st 2019 at 159 pm merged dr loot expert.
Power Window Wiring Diagram Ford F150 Forum Community Of
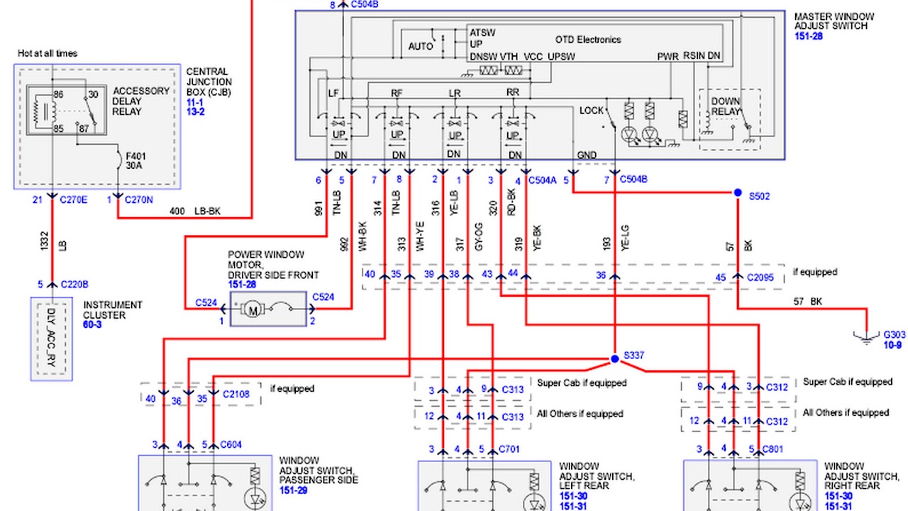
2004 silverado power window wiring diagram. A wiring diagram is a streamlined traditional pictorial representation of an electrical circuit. Stud 1 fuse l 40a trailer wiring automatio level control compressor abs fuse 52 6oa brake pressure modulator valve pump ign a fuse 3 40a starter relay ignition switch ign 1. A very detailed wiring diagram analysis video and part of our wiring diagram and automotive electronic series here on this channel. Here well go into details on the newer computer controlled. Im trying to convert a manual to a power windows and mirrors. Clicking this will make more experts see the question and we will remind you when it gets answered.
I need a power window wire diagram for a 2004 chevy siverado chevrolet silverado 1500 question. Posted by billyrivera on sep 11 2010. Our people also have some more figures related to 2004 chevy silverado fuse box diagram please see the image gallery below click one of the pictures then the picture will be displayed large as shown above. Chevrolet silverado 1988 2005 vehicle wiring. Jun 18 2009 2002 chevrolet silverado. This is the chevrolet silverado 1500 questions power window problems cargurus of a pic i get off the 2004 chevy silverado fuse box diagram package.
Chevrolet silverado wiring diagram power window circuit diagram chevy gmc pick up silverado wiring diagram free wiring diagram silverado power window wiring diagram wiring diagram chevrolet silverado wiring diagrams power window wiring diagram 1 free online wiring diagrams silverado sierra wiring diagrams silverado sierra chevy silverado window switch flaky how to fix power windows switch panel troubleshooting gmc sierra. I need a power window wire diagram for a 2004 chevy siverado. Power ground and class 2c 2003 access our avalanche sierra silverado ck series 1999 2005 door control module schematics repair guide by creating an account or signing into your autozone rewards account. I believe the easier way to do that is to go to the junkyard and remove the wiring harness from the door of your same truck it should plug right in and your truck should already be wired for electric windows from the. 2001 silverado power window wiring diagram. Add your vehicle in manage my vehicles.
Free online wiring diagrams aug 30 2018 1137pm does anyone have a wiring schematic with ecm pinout to share for 92 siverado with 74 auto 4x4 k3500 using ecm 1614060 axrd the 1227730 is everywhere but i cannot find the 1614060 for my truck thanks for any help you can offer. My driver side power window on 2004 silverado 3500 will not go up or down works sometimes but not always. Question about chevrolet silverado 1500. Otherwise the structure will not function as it should be. You can save this graphic file to your individual device. Once you sign in follow these instructions to access our repair guides.
Variety of 2004 silverado wiring diagram pdf. Please right click on the image and save the photo. It reveals the elements of the circuit as streamlined shapes and also the power and signal connections between the gadgets.
















